Витебское городское жилищно-коммунальное хозяйство объявило закупку модульных туалетов для города. Пример обзественного модульного туалета (установлен в российском Кургане)

О планах на приобретение подобных общественных туалетов «ННВ» сообщали в начале марта. Тогда же в ЖКХ заявили, что новые отхожие места будут платными.

По имеющейся информации новые общественные туальты должны разместить Витебске по следующим адресам:

  • парк Партизанской Славы имени Миная Шмырёва в районе улицы Чехова;
  • улица Янки Купалы (район зоопарка);
  • парк Железнодорожников в районе 7-й улицы Свердлова;
  • парк Победителей по улице Калинина (район поликлиники МВД);
  • территория парковки в районе зоны отдыха на реке Витьба по проспекту Людникова.

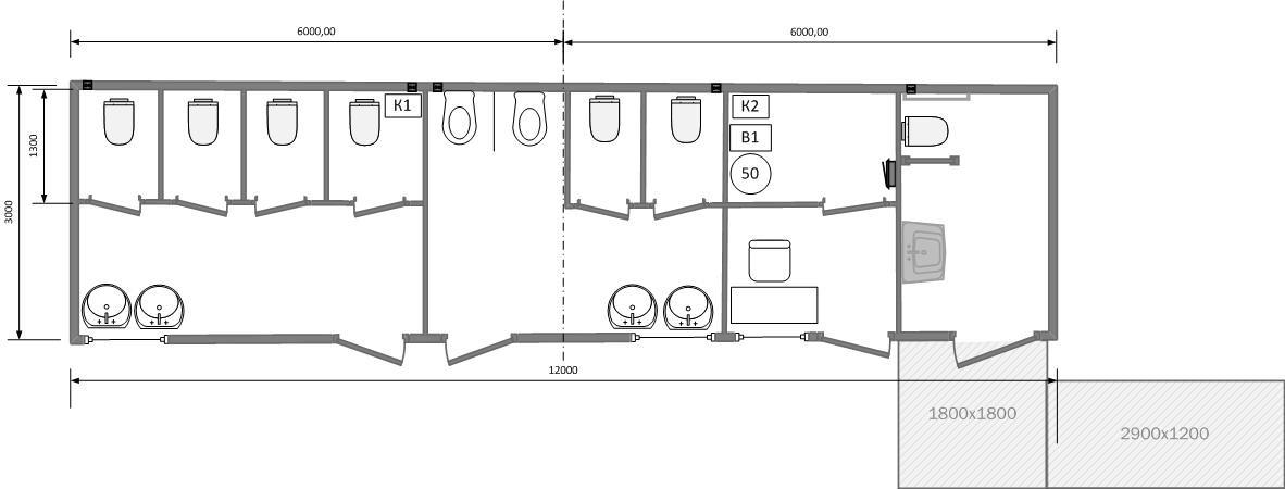
Сейчас стало известно, какие именно модули закупаются и их ориентировочная стоимость. Согласно документации закупки, закупаются пять модульных туалетов следующей конфигурации:

  • два туалета на три кабинки (женская, мужская, для физически ослабленных лиц) общей стоимостью 270 000 рублей (135 000 рублей за модуль);
  • туалет на четыре кабинки (2 женских, мужская, для физически ослабленных лиц) ориентировочной стоимостью 150 000 рублей;
  • туалет на пять кабинок (3 женских, мужская, для физически ослабленных лиц) ориентировочной стоимостью 180 000 рублей;
  • туалет на семь кабинок (4 женских, 2 мужских, для физически ослабленных лиц) ориентировочной стоимостью 200 000 рублей.

Общественный туалет появится в парке 1000-летия в Витебске

Общая ориентировочная стоимость закупки составляет 800 000 рублей. Туалеты закупаются из одного источника. Оплатят их за счет бюджетных средств.

Поставить новые общественные туалеты в Витебск должны до 14 июня.

Общественный туалет появится в парке 1000-летия в Витебске

Как ранее писали «ННВ», для парка 1000-летия подобный модульный туалет приобрели у минского частного производственно-торгового унитарного предприятия «Модуль Идея» за 171 828 рублей.