Под Брестом можно купить корпуса бывшего пионерского лагеря

Пионерский лагерь — место, которое не всем детям приходилось по душе. Но даже те, кто не переносил такой вид отдыха, сейчас просто захлебнутся от ностальгии: под Брестом выставили на продажу сразу несколько спальных корпусов и здание клуба классического пионерлагеря. Не модного (с блочной системой или санузлами и душевыми на этажах), а «трушного» — с щитовыми домиками, большими комнатами, в которых умещалось с десяток кроватей, и столовой где-то на отшибе.

Расположены постройки в очень красивом месте: урочище Сосновый бор Жабинковского района. Вокруг — только вековые сосны. Неподалеку протекает река Мухавец. Вот уж где единение с природой.

Под Брестом можно купить корпуса бывшего пионерского лагеря

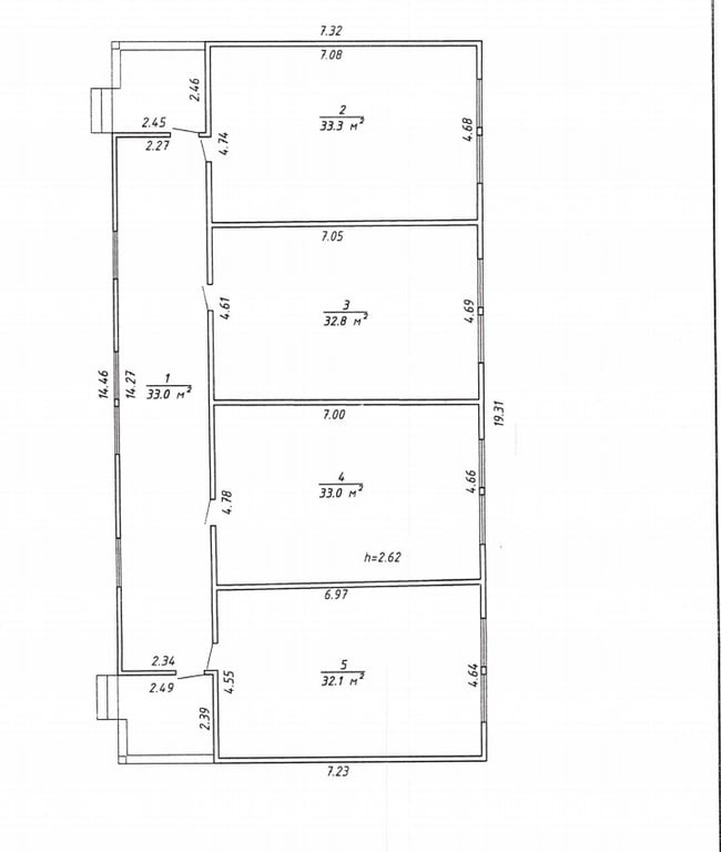
Домики уже пенсионеры, по документам они были зарегистрированы в 2007 году, но в реальности явно значительно старше. Площадь обеих построек солидная — по 164 квадратных метра. Каждое здание разбито на четыре 33-метровых комнаты, коридор занимает такую же площадь. Санузла предсказуемо нет. Отдельный земельный участок под обслуживание капитального строения не выделен.

Под Брестом можно купить корпуса бывшего пионерского лагеря

Назывался лагерь «Зорька». Брестские, кто там бывал? Какие воспоминания? Пишите в наш бот о пережитом — добавим в публикацию.

Сборно-щитовые спальные корпуса оценили в 7940 рублей. По крайней мере, с этой суммы начнутся торги. То есть за один «квадрат» на старте просят всего 48 рублей. Вот это ставки!

Под Брестом можно купить корпуса бывшего пионерского лагеря

Под Брестом можно купить корпуса бывшего пионерского лагеря

Продается также и здание клуба. 214 квадратных метров (и отсутствие ремонта внутри). Стартовая цена — 12 040 рублей.

Под Брестом можно купить корпуса бывшего пионерского лагеря

А теперь самое любопытное: постройки принадлежат ООО «Лесная гавань» (точнее, уже арестованы). Эта организация хорошо знакома дольщикам столичного «Грушевского посада», ведь часть внесенных ими средств застройщик, «Жилстройкомплект», по своему усмотрению пустил на загородный комплекс под Брестом. Вместо строительства высоток на проспекте Дзержинского. Теперь выяснилось, что, помимо парадной части с современными коттеджами, у «Лесной гавани» в запасе был еще и пионерлагерь.